公共施設 階段 寸法 (418 無料写真)

x
Auteur: Hisano

直通階段とは? 建築基準法上の定義などをわかりやすく解説 建築基準法とらのまき。

好きです: 63

よくあるご質問。

好きです: 129

注文住宅でこだわりたい!設置できる階段の種類と便利な機能をご紹介cozy life コージーライフ。

好きです: 218

こんな回り階段にご注意!注目すべき住宅階段寸法のメソッド和風住宅・古民家リノベ 設計事務所のスタッフブログ。

好きです: 222

住宅における階段寸法の計算方法は? 最低基準や理想の幅・高さの求め方を説明 - DAIKEN。

好きです: 420

建築設計における『階段寸法』の基準を解説幅・けあげ・踏面の限度 – 確認申請ナビ。

好きです: 312

階段手摺・手すり高さの基準とは?位置や建築基準法を解説。

好きです: 417

一級建築士が考える、住宅の階段について。水井装備。

好きです: 181

建築設計における『階段寸法』の基準を解説幅・けあげ・踏面の限度 – 確認申請ナビ。

好きです: 416

YKK AP YKKAP階段 箱型直階段 幅木下部3段廻り:W08サイズ : ノース&ウエスト - 通販 - Yahoo!ショッピング。

好きです: 37

FAQ - 埼玉県。

好きです: 416

階高、踏み面、掛け幅、蹴上げ、鼻の出寸法とは何ですか。 階段について- 階段 - Panasonic。

好きです: 332

階段寸法の目安髙山康宏建築デザイン京都住宅・店舗デザイン等の建築設計。

好きです: 213

階段の寸法基準や踏面、理想的な蹴上について建築基準法とらのまき。

好きです: 231

人街条例届出等Q&A 5 階段 6 エレベーター - 愛知県。

好きです: 73

階段寸法とは?基本知識から寸法バランスと勾配の設計まで紹介。

好きです: 21

要約 建築基準法 第29条~41条。

好きです: 431

2025 建築基準法における階段の基準を解説!住宅・工場・学校・屋外階段の寸法・規定とは? - BIM CIM研。

好きです: 269

階段寸法が上り下りのしやすさを左右する! 老後も考えた理想的な蹴上げ・踏面寸法は?WOODONE ウッドワン マガジン広島の住宅建材メーカーWOODONE ウッドワン が発信する住宅オウンドメディア。

好きです: 41

一級建築士が考える、住宅の階段について。水井装備。

好きです: 442

階段のパターンまとめ 一級建築士製図。

好きです: 33

階段の寸法とは? 決まりや各名称などの基礎知識を解説! - 階段昇降機・車イス用階段昇降機・介護用階段昇降機販売レンタルは株式会社リフテック。

好きです: 261

階段設計・施工の注意事項集成材のTSC階段、カウンター、造作材をオーダー加工・販売で対応。

好きです: 231

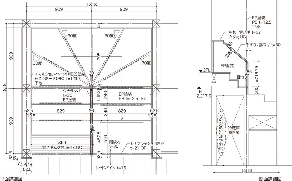
階段詳細。

好きです: 474

屋外・屋内アルミらせん階段 KDスパイラル ガラスタイプ 段板巾600 送料込み。

好きです: 97

電動車いす対応の階段昇降車 ステアエックス TRE-70-2 可搬型階段昇降機 車いす用階段昇降機: 昇降装置・段差解消機・スロープ : 住宅・施設 ・家具。

好きです: 376

自動計算 階段寸法検証 踏面 蹴上 踊場 計算の書 » アーキクエスト ARCHIQUEST。

好きです: 209

階段設計・施工の注意事項集成材のTSC階段、カウンター、造作材をオーダー加工・販売で対応。

好きです: 364

バリアフリー階段の有効幅と基準 - Genspark。

好きです: 290

階段の寸法の計算や建築基準法を解説 住宅の階段設計の注意点。

好きです: 102

駅の階段、寸法に工夫 - 日本経済新聞。

好きです: 313

大阪・豊中市の造園・外構・エクステリアのフジ・エクステリア» Blog Archive » 第16話「建築基準法 -階段・手すり-」。

好きです: 33

階段の寸法や踊り場に決まりはある?手すりは必要?新築時、リフォーム時に知っておきたいポイントSUUMOお役立ち情報。

好きです: 433

階段の幅の平均は?使いやすくて安全な階段の幅を解説KATZDEN。

好きです: 481

マンションの階段、4階5階は上り下りが大変。共用階段と室内階段、安全な寸法や幅は?SUUMOお役立ち情報。

好きです: 142

階段昇降機 設置に関する基本的な情報 有効幅や収納スペース をご紹介。

好きです: 72

外だからこそより安全に 外構の階段と手すりの付け方 その1coniwa。

好きです: 193

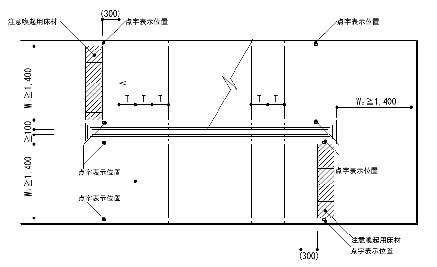
7-11-1~2 階段:階段 平面、断面 平成28年版 建築工事標準詳細図。

好きです: 336

のぼりやすい階段の作り方計算式、階段別のメリット・デメリットも - フィックスホーム草津市・栗東市で注文住宅を建てる工務店。

好きです: 23

修正UP! 階段の描き方 階高4,000mm ふじやま一級製図LABO。

好きです: 287

昇り降りに適した階段の寸法や設計、バリアフリーリフォームについて解説介護・バリアフリーリフォームを学ぶリフォーム評価ナビ。

好きです: 203

建築基準法の基本がわかる 階段 踊場の位置・踏面 直階段- いろはに建築基準法。

好きです: 320

踏面とは?読み方・意味・禁止事項から用途別の寸法・英語を紹介!イキカタ。

好きです: 148

修正UP! 階段の描き方 階高4,000mm ふじやま一級製図LABO。

好きです: 60

住宅における階段寸法の計算方法は? 最低基準や理想の幅・高さの求め方を説明 - DAIKEN。

好きです: 165

建築基準法の基本がわかる 階段 幅・蹴上・踏面- いろはに建築基準法。

好きです: 79

第4回 数字で読む建築基準法 今月の数字「200」階段寸法、直通階段、竪穴区画の規定ビューローベリタスジャパン 鈴木英俊。

好きです: 398

おすすめの写真ページ:

公共施設 階段 寸法
住所情報: 18535 翼Trafficway, Apt. 589, 670-4850, 北渡辺区, 長野県, Japan
お電話番号: +81 70-1205-5860
事業者名
光彩館